Quantum Partners LLC
Chicago, IL
ph: 312.725.4668
info
Return to Previous Page
- Fantastic location!
- In the heart of prestigious East Lincoln Park.
- A short walk from the award winning Lincoln Elementary School.
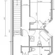
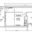
- Complete Renovation - Everything new 2018!!!
- Sunny top floor
- 1Bedroom / 1 Bath
- Central AC
- All New Windows
- New bath
- Hardwood Floors
- Free Laundry in the building
- Intercom with Door Buzzer
- Rear Balcony
- Landscaped yard

Interested in renting an apartment?
Download our Rental Application and return to info@QP-Advisors.com
Still have a questions? Please contact us anytime! We look forward to hearing from you.
Copyright 2022 Quantum Partners LLC. All rights reserved.
Quantum Partners LLC
Chicago, IL
ph: 312.725.4668
info